Marriott

Dead Sea

Resort

Das Dead Sea Marriott Resort & Spa ist liegt nur wenige Schritte von Jordaniens Küste am legendären Toten Meer entfernt und bietet große Zimmer und Suiten mit Marmorbad und eigenem Balkon.

 

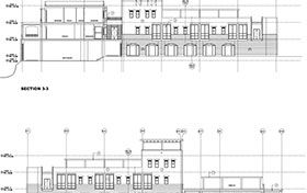
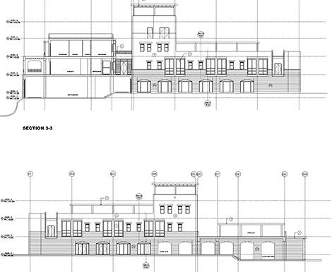
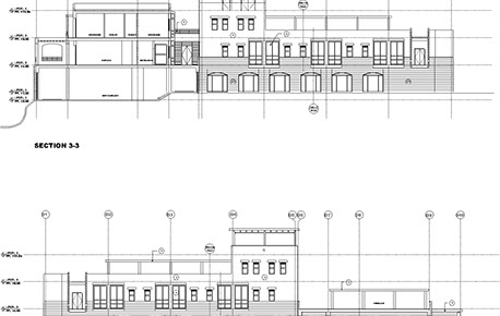
Das luxuriöse Hotel liegt direkt am Toten Meer mit eigenem Strand, am tiefsten Punkt der Erde. Die zweigeschossige Eingangshalle im arabischen Architekturstil bietet dem Besucher ein ansprechendes Willkommen. Die 205 Zimmer und Suiten verteilen sich auf fünf Gebäudekomplexe, die sich in der Höhenentwicklung an die umgebende Landschaft anpassen. Ein außergewöhnlich schöner Außenbereich mit Pool und Entspannungszone liegt zwischen Hotel und Totem Meer. Zur luxuriösen Ausstattung des Hotels zählen auch ein großer Konferenzbereich mit Ballsaal und ein großzügiger Spa.

 

BGF: 32.000 m²

Geschosse: 5

Zimmer: 250

Bau: 1998–2003

Baukosten: ca. € 50 Mio.

Consultant: Jafar Tukan & Partners

 

Meine Leistungen: Ausführungsplanung und Projektkoordination

 

Kontakt    Impressum & Datenschutzerklärung

 

 

© Simone Bahr 2020